什么信号?无锡的千万豪宅圈在扩容
2024-05-30 13:49:05 无锡房地产市场网
市场下行的环境里,这两年无锡楼市的产品品质可谓卷出“天外天”。
甚至豪宅市场,曾经凤毛麟角的千万级产品如今也要靠“搏”才能出市。
奥体潮鸣、前湾国际、云山院、十里上棠,产品力领跑、地段上各有各的价值……
巅峰相见,无我无敌,却是充分丰富了顶层人士的购房选择!
壹
奥体潮鸣|奥体中心|叠墅
每一座城市都只有一座奥体中心,每一场奥体盛会都引领着城市板块的蝶变发展。
而奥体潮鸣作为无锡奥体冠军资产的杰出代表,同时直面约560万方贡湖湾湿地公园,拥有一线湖景资源,配得上千万级豪宅的称谓。
奥体潮鸣外立面实景
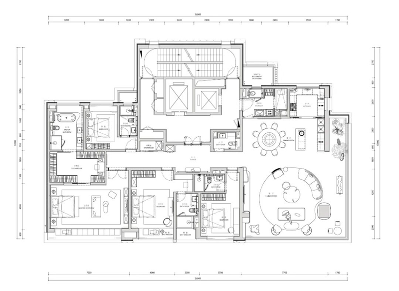
奥体潮鸣容积率低至1.8,整个小区共计858户,规划10栋高层和29栋叠加别墅。
高层总高21-24层,建筑面积约155-278㎡;叠墅包含15栋5层叠墅和14栋7层叠墅,建筑面积约219-326㎡(不含地下室),均为精装修交付。

下叠样板房
其千万级价值产品主要为叠墅,每户配置私家电梯,可独立入户。
奥体潮鸣打破常规叠墅仅下叠有地下室局限,罕见为上、中、下叠均配备地下室,无论上叠还是中叠客户均等享有地下空间的权利。
下叠更是享有庭院空间,日常赏花闲坐,十分惬意。

下叠庭院
贰
前湾国际|11平方公里国际示范区|大平层
无锡中心(规划中)、无锡南站(规划中)、奥体中心(在建)、无锡国际会议中心、无锡美术馆(在建)……
什么样的豪宅能匹配得上集合以上城市地标的经开11平方公里国际示范区?仁恒前湾国际378平米大宅当入列。

前湾国际效果图
与千万级别墅军团相比,千万级别的大平层豪宅阵营相对稀缺。
就算是仁恒前湾国际,也仅有378平米户型入选,但这个户型的抗打程度不逊于叠墅。
首先就是仅27套的稀缺,其次是平层的墅居体验。

前湾国际378平米户型图
这套378平米户型采取两梯一户,一层一户,双梯直达,私密双入户归家动线——主动线双开门入户,独立入户玄关,家政动线从独立家政间入户。
整个户型最大的亮点即是270°「全景舱」端厅,南向开间约9.4米,东向侧面宽约10.85米,建面约102㎡LDK一体化无界端厅,将客厅、餐厅、厨房、L型环绕式跑道阳台打造为一体化公共系统。
只能说我那被贫穷限制的想象从前湾国际打开了。

前湾国际378㎡样板房
叁
云山院|长广溪|湖山叠墅
出自长广溪,必须是豪宅。
约27公里的黄金湖岸线、约260公顷长广溪湿地公园、约5000亩雪浪山生态园、约1500亩的龙山寺生态园……
占据长广溪最优质的自然资源,这个豪宅不一般:安居&龙湖携手打造一线湖山墅——云山院,1.2容积率、仅284席的低密纯叠墅,卷!

实景
更卷的是那套拥有叠墅的外衣、独栋的内核的476平米王者户型。
一层采用LDKG大宽厅一体化设计,面积达到了约88㎡,开间约7.6米、进深约8.7米,搭配270°巨幕级观景视野,叠墅里可谓是“孤品”。
二层主卧为大套房,约4.5米面宽,搭配大面积落地玻璃窗,再加上7.4米双阳台,270°L型环幕视野安排上了。

476平米户型样板间

476平米户型样板间
这套户型花园一层庭院面积达约180㎡,同时地下室打造有下沉式庭院,赋予妥妥的独栋住居体验。
地下室层高约5.7m,可以轻松隔出两层空间,三层的设计、四层的空间,又是一个加分项。

476㎡L型庭院实景
肆
十里上棠|南长芯运河畔|叠墅
南长芯、运河畔,妥妥的城市C位。这里每出一个豪宅都称得上绝版。如今十里上棠入市,南长芯千万级豪宅的产品力迭代更新。
南长运河畔+容积率1.04,意味着天生贵胄。十里上棠全盘仅1栋四叠、5栋六叠,总共85席,其稀缺程度可见一斑。

十里上棠效果图
在项目规划上,十里上棠引入“风车结构系统”,呈现“臻藏山水,院藏东方”的纯墅住区。同时借鉴寄畅园造园手法,规划“一核两轴六巷”多元场景以及9境归家礼序。

十里上棠景观示意图
近千万的产品主要为建面约205平米、325平米的下叠,目前公开样板间的为205平米下叠。
一层超尺度大横厅,双层约20米面宽,LDKG式的动线布局,让餐客厅、花园实现三位一体洄游联动,宛如一个花园全景舱。二层卧室全部采用大套房设计,足以匹配老钱和新贵们。

205平米户型样板间
值得一提的是,该户型内部还预留了私家电梯的空间,同时考虑到无锡独有的梅雨天气,取消了地下空间的规划,规避了阴暗、潮湿的环境。
这样的配置有突破千万级资产壁垒的魄力,也有扛鼎城市巅峰人居的实力,哪有不选的理由!
写在最后
不是所有的土地都能成为豪宅,成为豪宅一定有他的核心优势。每一座城市,都有一个主导城市空间秩序发展的城市脉络。
在无锡,经开奥体中心、11平方公里国际示范区、山水城长广溪、蠡湖新城、还有龟背壳城芯,都是豪宅沃土……
豪宅的内核也从来都不是表面的钢筋水泥,而是对生活方式的理解与呈现。
无锡豪宅圈的扩容,则拉开了豪宅间生活细节上的差距。豪宅的迭代和进化,告示新周期楼市的生命力所在!这样的信号适用于普通刚需和改善型楼盘,你接收到了吗?
