梁溪一出手就是王炸,顶配地段上新低密宅地
3月17日,2023年无锡首批涉宅地块挂牌,共6幅地块,其中梁溪区供应2宗商品住宅用地及1宗定销房用地。2宗商品住宅用地皆为低密地块,将于4月21日开拍。

惠山古镇三期A地块(XDG-2023-2号地块)
运河旁,惠山下,如此稀缺的地段上新了一宗低密宅地。
惠山古镇三期A地块于今年无锡挂牌的首批涉宅地块中亮相。地块位于梁溪区盛岸路与通惠西路交叉口东南侧,可建设用地面积31843㎡,为居住、商业用地(其中商业核定建筑面积占总核定建筑面积的比例不小于39%,不大于40%),地块容积率仅1.05。
地块起拍总价5.09亿元,起拍楼面价15225元/㎡(其中住宅部分起始楼面价20113元/㎡),最高限价5.39亿元,最高楼面限价16112元/㎡(住宅部分限价21000元/㎡)。

地块鸟瞰图(来源土拍网)
惠山古镇三期A地块规划指标颇高:
1.新建住宅中成品住房比例为100%;
2.住宅建筑高度≥3层且檐口高度≤12M,沿河水街低层控制区内建筑≤9M,沿河第一界面以1层为主,原则上不超过2层。

地块实景
地块配套情况
交通配套:地块位置绝佳,地块西北侧约1公里处是快速内环,北面与蓉湖大桥相邻,往东则为运河西路,路网发达,交通便利。在公共交通方面,地块800米范围内有4号线惠山古镇站,3、4号线换乘站盛岸站。
商业配套:地块位于主城区范围内,中山路商圈、欧风街商圈等老城商业资源距离地块均不算太远,生活配套齐全。
景观配套:景观资源是地块的一大卖点,地块北临京杭大运河、南望惠山。与运河公园相距约700米、与惠山古镇相距约500米,未来业主可以说是住在了公园里。
教育配套:在教育资源方面,这块地附近有已建成的无锡外国语学校、惠山小学等。另外,在建的积余实验分校与五爱小学石门路分校等教育资源距离地块也不算远。

周边道路:通惠西路(施工中)

周边道路:古华山路

惠山古镇
地块开发价值
市中心、运河畔、惠山脚下,搭配1.05容积率,想想就知道这块地有多么稀缺了。要知道近2年市主城推出的低密地块都是相当抢手的,世纪金源紫檀南长里,吸引了77家房企摇号。夹城里AD地块更是逆势摇号成交,楼面价达21000元/㎡。
就周边开发情况来看,目前地块周边在售楼盘不多,产品报价均超30000元/㎡。近段星合·中山玖里在售主力为精装高层,均价约30000-32000元/㎡,项目整体房源不多;盛岸路段在售的山河万物、山河万象已经入销售尾声,山河万物主打五恒小高层与五恒洋房,面积偏大,小高层惠后均价31000-32000元/㎡,洋房惠后价33000-34000元/㎡;山河万象在售精装小高层,面积76-105㎡,惠后均价30000元/㎡。
值得关注的是,不久之前,梁溪区政府与仁恒置地已经签订《关于惠山古镇片区城市更新项目合作协议》。惠山古镇三期A地块妥妥是预定了本批次土拍热榜位置。

庆丰A地块(XDG-2023-3号地块)
三年前庆丰B地块以约13324元/平米的楼面价成交,引领无锡老城区中央车站商圈人居价值完成升级。
3月17日,无锡年内首批宅地挂牌,庆丰A地块赫然在列,起始楼面价13678元/㎡、限价楼面价15729元/㎡,老城光环依旧闪耀。
庆丰A地块位于梁溪区庆丰路和惠勤路交叉口西南侧,可建设用地面积19089.9㎡,为居住用地,容积率>1且≤1.35,妥妥打造低密住区。现场可以看到地块现状为净地。

地块鸟瞰图(来源土拍网)
根据规划指标来看,庆丰A地块将打造中央车站片区内的高品质人居:
1.新建住宅中成品住房比例为100%;
2.住宅建筑≥8层且≤16层,其中建筑高度控制区内住宅建筑≥8层且≤10层。
地块配套情况
交通配套:地块周边通江大道、锡澄路、锡沪西路、兴昌北路等主干道纵横交错,1公里内可达快速内环线——江海路。地块临近无锡交通枢纽——中央车站;距离地铁1号线火车站约600m左右,已开通的无锡地铁1号线与在建的3号线在此交汇。公共交通出行条件十分便利。
商业配套:地块位于无锡老城区,中山路商圈、欧风街商圈、广益商圈等老城商业资源都在3公里辐射圈内,可谓举步繁华。
教育配套:地块周边教育配套较为完善,地块不远处就是隶属于东林小学教育集团的通江实验小学,直升无锡市广勤中学,周边还有崇安中心幼儿园、广勤中学等。
医疗配套:地块距离三院直线距离约1公里,第五人民医院及904医院(原101医院)均距地块1.5公里左右。锡澄社区卫生服务站到地块举步可达。

周边道路

居然之家

通江实验小学

中央车站
地块开发价值
庆丰A地块所在的无锡中央车站商圈是典型的老城区,曾经集一城繁华于一身。在新城区热度迅速攀升的时下,该片区依旧因为坐拥城市交通枢纽而备受青睐,尤其是商业、居住、教育氛围的浓厚,牢牢拴住了一大批地缘性居民。
目前地块周边主力在售商品楼盘仅为圆融广场,高层均价约20000-22000元/㎡;与地块相邻的中梁中奥·溪涧堂上市一年多即清盘,销售均价约为26000元/㎡。在刘潭片区棚改的背景下,大量的拆迁需求和地缘性改善需求涌出,庆丰A地块未来可期。

周边楼盘
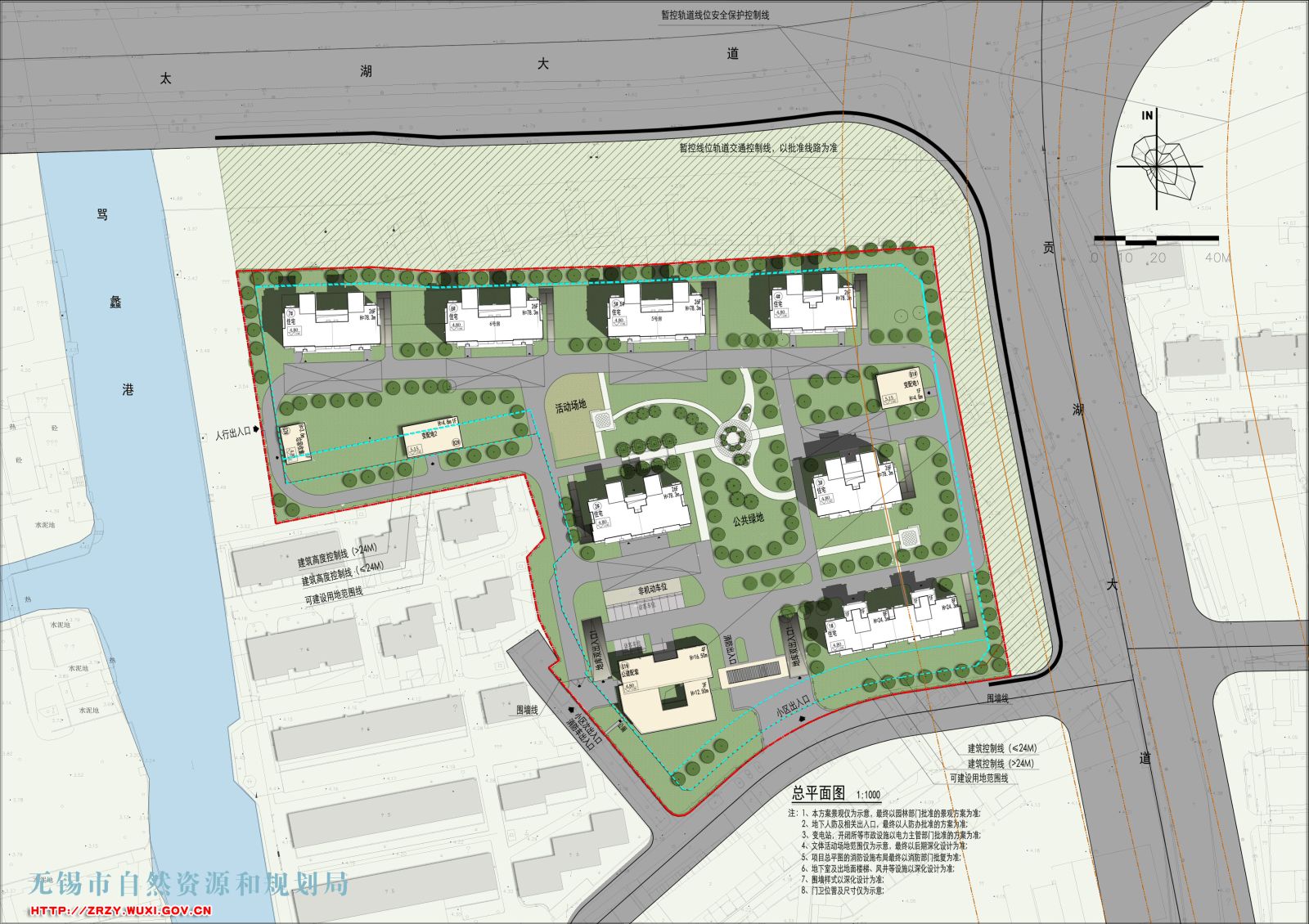
公交三场北地块(定销地块)(XDG-2023-6号地块)
该地块位于梁溪区太湖大道与红星路交叉口西南侧,可建设用地面积27898.6㎡,为居住用地(定销商品房),容积率>1且≤2.5。地块起拍总价7.37亿元,起拍楼面价10560元/㎡,最高限价8.47亿元,最高楼面限价12144元/㎡。
就区域来说地块位于公交三场北侧,西侧临河,处于梁溪区与滨湖区交界处,可共享两区利好,周边成熟小区环绕,生活氛围浓厚,方圆荟购物中心、金星睦邻中心、阳光购物广场、无锡市中医医院、明慈心血管病医院、古罗马大酒店等各类配套咫尺之遥,繁华生活圈立等可享。
该地块规划此前已公示。根据公示内容,公交三场地块拟打造1幢8F的多层和幢26F的高层,为高低配住区。建设单位为无锡市梁溪棚户危旧房改造发展有限公司。

地块鸟瞰图(来源土拍网)

项目效果图

项目规划
