招商钱桥第二子规划出炉,15栋11层住宅计划入市
2020-12-09 11:28:41 无锡房地产市场网
9月28日,钱桥街道洋溪8号地块被招商局地产以9471.96元/㎡拿下,溢价5.24%。这是招商局地产继今年3月楼面价9164元/㎡竞得洋溪5号地块(现招商雍荣府项目)之后,时隔仅约7个月再入洋溪板块。
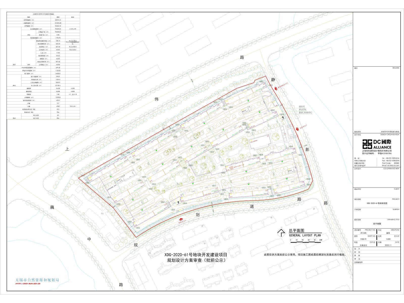
近日,无锡市自然资源与规划局公布了该地块规划。该项目位于惠山区,建设单位为无锡溪胜房地产开发有限公司,用地位于钱桥街道上伟路与静影路交叉口西南侧,用地性质为居住用地。该项目可建设用地面积约5.29万平方米,总建筑面积约13.12万平方米,主要设计内容为15栋11层住宅、配套用房及地下室等。据小道消息,该地块将由招商局、美的、路劲三家房企联和开发。


