惠丰苑三期安置房(保障性)新建工程(A块一期)规划设计方案审查批前公示
2022-11-10 09:43:15 无锡房地产市场网
应建设单位申请,根据城乡规划管理有关规定,现对无锡前信资产经营管理有限公司惠丰苑三期安置房(保障性)新建工程(A块一期)规划设计方案进行批前公示。
一、项目概况
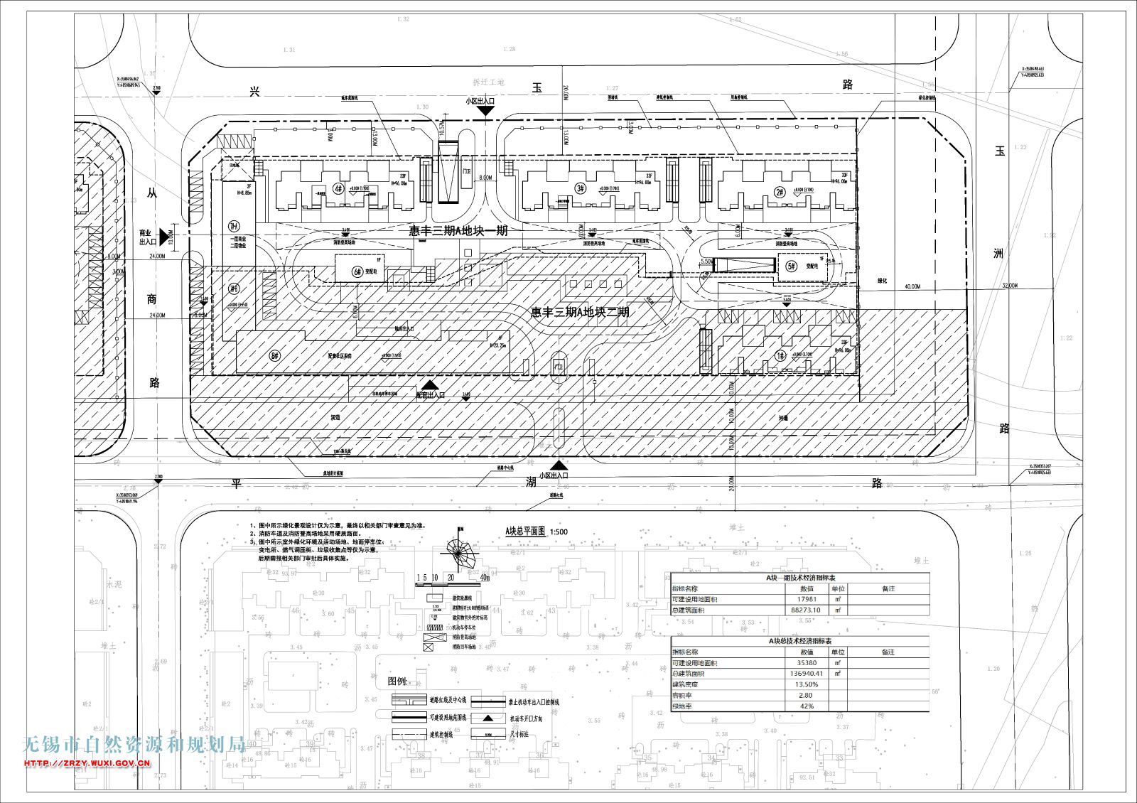
该项目位于惠山区前洲街道,建设单位为无锡前信资产经营管理有限公司,东侧为玉洲路、西临从商路、南侧为平湖路,北临兴玉路,规划用地性质为居住用地,总可建设用地面积约1.8万平方米,该项目主要设计内容为4栋高层住宅及配套用房、地下室等,总建筑面积约13.7万平方米。工程分两期实施建设,本次报审方案为项目总体规划布局结构和一期建筑单体实施方案,其中一期拟建3栋住宅及配套用房等,建筑面积约8.8万平方米。
二、公示地点和时间
公示地点:
1、项目所在地现场、沿路围墙及周边小区出入口
2、无锡市自然资源和规划局网站(http://zrzy.wuxi.gov.cn/)
3、无锡市自然资源和规划局惠山分局公示栏
公示时间:2022年11月2日---2022年11月11日
三、联系方式和意见反馈
联系地点:无锡市自然资源和规划局惠山分局(文惠路16号)
邮政编码: 214174
联系电话:0510-83598093 0510-83598096(电话、传真)
电子邮箱:GHJHSFJ@163.COM
公示期间,如有意见或建议,请反馈给我局(请注明本人身份、联系电话或地址)。
附:方案总平面图,鸟瞰图等设计图件(批前公示)
无锡市自然资源和规划局惠山分局
2022年11月1日


