经开又一项目规划公示,拟建10栋住宅
2023-01-29 16:56:37 无锡房地产市场网
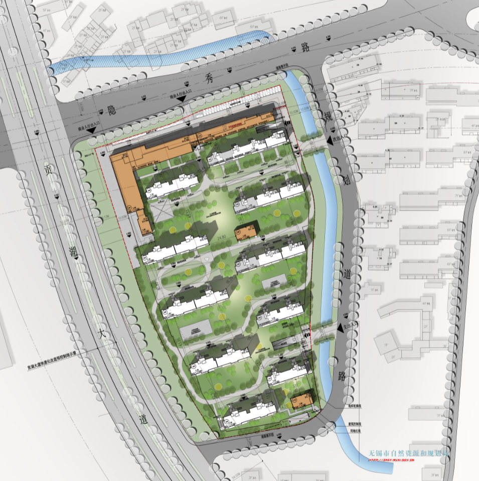
近日,XDG-2022-60号地块开发建设项目规划设计方案批前公示。
项目位于无锡经济开发区贡湖大道与隐秀路交叉口东南侧,建设单位为无锡城秀置业有限公司,总可建设用地面积约4.23公顷,总建筑面积约12.06万平方米,其中地上建筑面积约8.65万平方米,地下建筑面积约3.41万平方米。

主要建设内容为新建住宅及配套设施,容积率、绿地率、建筑密度等相关规划指标符合规划要求。
从总平面图上看,项目规划10栋住宅,层高在8~18层之间。另外,项目北侧规划有商业、社区商业用房、垃圾收集站、公厕、文化活动用房、社居委用房、社区卫生服务站、养老活动用房。

项目地块为去年8月30日无锡第三批次集中供地中,由无锡新都房产开发有限公司以楼面价17360元/㎡竞得。
