11月,规划上新!涉及学校、商业、文旅等...
进入11月,锡城又公示了一批新规划。
根据无锡市自然资源和规划局、无锡市行政审批局公示信息,11月以来,锡城这些区域城建配套将再度更新,涉及学校、商业、文旅、房地产开发项目等等多个方面。
学校及相关配套
羊尖镇严家桥村村民委员会严家桥幼儿园易地新建工程规划设计方案批前公示
项目位于无锡市锡山区羊尖镇严家桥小学西、青年路东,建设单位为羊尖镇严家桥村村民委员会,可建设用地面积约3989平方米,建筑面积约3495平方米,均为地上建筑,容积率为0.86,建筑密度为29.6%,绿地率为30.18%。

江苏省天一中学宛山湖分校新建工程项目规划设计方案批前公示
项目位于锡山经济技术开发区联福路西、厚惠路南,建设单位为无锡宛山湖城市发展集团有限公司,总可建设用地面积约 126317平方米,用地性质为学校用地,总建筑面积约13.17万平方米,其中地上建筑面积11.65万平方米,地下建筑面积约1.52万平方米,容积率0.92,建筑密度29.4%,绿地率35%。


雅西小学田径场新建工程规划设计方案审查批前公示
项目位于惠山区,建设单位为无锡市惠山区洛社镇人民政府,用地位于洛社镇雅西社区现状雅西小学东侧,可建设用地面积约1.63万平方米,用地性质为教育用地,本次报审方案主要内容为新建田径场及1个看台,看台建筑面积约167平方米。

新建太湖学院学生公寓五期及食堂项目用地预审与选址意见书批前公示
项目为新建太湖学院学生公寓五期及食堂项目,建设单位为无锡太湖学院。位于滨湖区荣巷街道钱荣路西侧无锡太湖学院内(具体位置详见规划公示图件),可建设用地面积约为39826平方米,规划用地性质为高等院校用地。

商业配套
云林城市客厅建设项目用地预审与选址意见书批前公示
项目位于锡山经济技术开发区坊达路东、二泉路南、东安大道北,建设单位为江苏省锡山经济技术开发有限公司,用地范围东至现状建筑,南至东安大道,西至坊达路,北至二泉路(具体位置详见附图)。可建设用地面积约46366平方米,用地性质为公园绿地。

文旅配套
惠山大剧院(省锡中艺术楼)新建工程规划设计方案审查批前公示
项目位于惠山区堰桥街道,建设单位为江苏省锡山高级中学,用地位于政和大道以北,惠育路以东,规划用地性质为高中用地。工程利用学校存量用地建设,用地面积约7870平方米,本次报审方案总建筑面积约1.1万平方米,主要设计内容为3层惠山大剧院以及地下室等。

金山北科技公园新建工程项目选址意见书批前公示
项目位于无锡市梁溪区会岸路与运河西路交叉口东南侧,用地范围四至:东至用地边界、南至杨岸路、西至会岸路、北至运河西路,总可建设用地面积约10530.1平方米。用地性质为街旁绿地。建设单位为无锡光电新材料科技园发展有限公司。

房地产开发项目
惠丰苑三期安置房(保障性)新建工程(A块一期)规划设计方案审查批前公示
项目位于惠山区前洲街道,建设单位为无锡前信资产经营管理有限公司,东侧为玉洲路、西临从商路、南侧为平湖路,北临兴玉路,规划用地性质为居住用地,总可建设用地面积约1.8万平方米,该项目主要设计内容为4栋高层住宅及配套用房、地下室等,总建筑面积约13.7万平方米。工程分两期实施建设,本次报审方案为项目总体规划布局结构和一期建筑单体实施方案,其中一期拟建3栋住宅及配套用房等,建筑面积约8.8万平方米。

惠丰苑三期安置房(保障性)新建工程(B块一期)规划设计方案审查批前公示
项目位于惠山区前洲街道,建设单位为无锡前信资产经营管理有限公司,东侧为从商路、西临万寿路、南侧为平湖路,北临兴玉路,规划用地性质为居住用地,总可建设用地面积约2万平方米,该项目主要设计内容为8栋高层住宅及配套用房、地下室等,总建筑面积约17.4万平方米。工程分两期实施建设,本次报审方案为项目总体规划布局结构和一期建筑单体实施方案,其中一期拟建主要设计内容为3栋高层住宅及配套用房等,建筑面积约8.3万平方米。

玉祁惠西大道保障性租赁住房工程规划设计方案审查批前公示
项目位于惠山区玉祁街道,建设单位为无锡厦安建设管理发展有限公司,用地范围西临润祁路,南临惠西大道,北侧、东侧为新沟河,规划用地性质为保障性租赁住房。地块可建设用地面积约1.88万平方米,本次报审方案总建筑面积约7万平方米,主要设计内容为4栋高层保障性租赁住房和1栋2层配套用房以及地下室等。

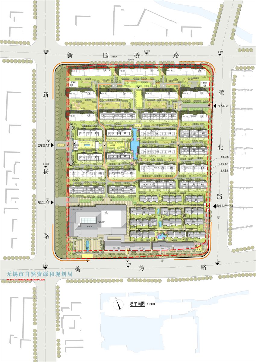
鹅湖新增一商住项目,古镇北地块规划出炉
项目位于锡山区鹅湖镇新杨路东、衡芳路北,建设单位为无锡万尚泰辰房地产有限公司,总可建设用地面积约 74489平方米,用地性质为居住、商业用地,总建筑面积约14.46万平方米,其中地上建筑面积约9.86万平方米,地下建筑面积约4. 6万平方米,容积率1.299,建筑密度29.8%,绿地率30%,各项指标符合规划设计条件要求。
XDG-2021-35号地块(鹅湖古镇北地块)于2021年8月2日成交,由文商旅竞得,成交楼面价6469元/㎡。根据地块要求,地块内设置不少于1.2万㎡(不含地下空间)的集中商业(不含办公、专业市场、批发市场等),自持且整体运营。商业综合体须在签订土地合同之日起36个月内满铺开业。从规划图来看,地块内住宅部分以叠墅为主。


