扬名变智慧运维示范项目工程规划设计方案批前公示
2023-05-05 10:37:45 无锡市自然资源和规划局
根据城乡规划管理有关规定,现对扬名变智慧运维示范项目工程的规划方案进行批前公示。
一、项目概况
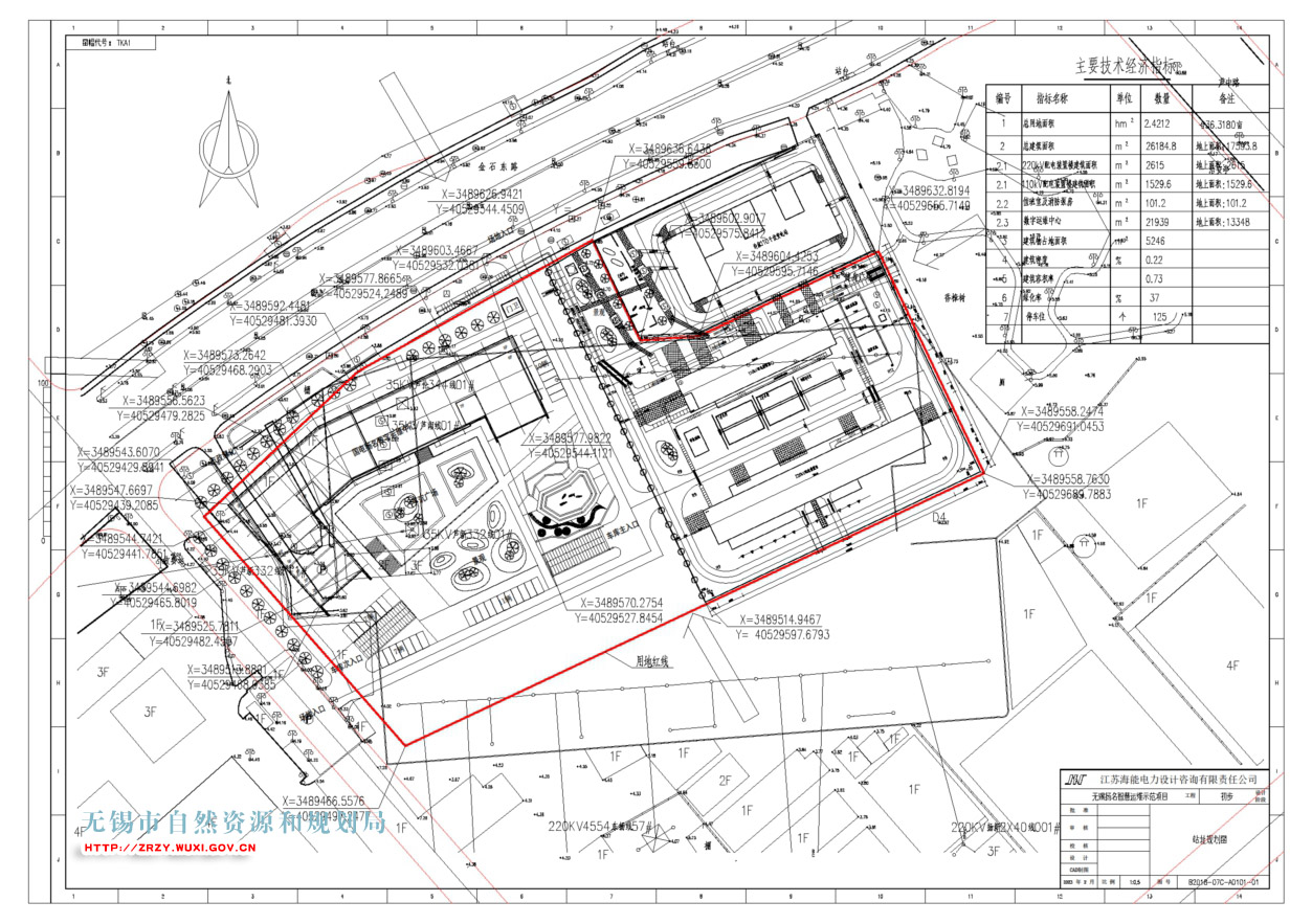
项目位于梁溪区,建设单位为国网江苏省电力有限公司无锡供电分公司。项目用地面积24212平方米,总建筑面积约为26184.8平方米(不含消防水池),地上建筑面积17593.8平方米,地下建筑面积8591平方米。
二、公示地点和时间
公示地点:
1、项目所在地现场(无锡市梁溪区区扬名街道金石东路和芦中路交叉口西北角)、梁溪区规划公示厅
2、无锡市自然资源和规划局网站(http://zrzy.wuxi.gov.cn)
3、公示时间:2023年4月28日—2023年5月7日
三、联系方式和意见反馈
联系地点:无锡市自然资源和规划局(观山路199号市民中心10号楼)
邮政编码:214131
联系电话:81823678 82756873(传真)
电子邮箱:szc_wxghj@163.com
公示期间,如有意见或建议,请反馈给我局(请注明本人身份、联系电话或地址)。
附:无锡扬名智慧运维示范工程规划方案批前公示图
无锡市自然资源和规划局
2023年4月28日



