无锡市仓下中学地块建设项目规划设计方案批前公示
2025-09-28 10:52:52 无锡市自然资源规划局
根据城乡规划管理有关规定,现对无锡市仓下中学的无锡市仓下中学地块建设项目规划设计方案进行批前公示。
一、项目概况
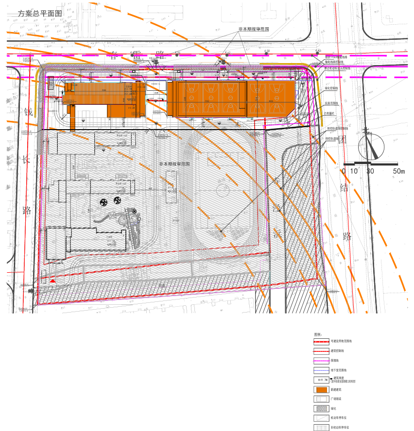
该项目位于锡山区云林街道团结中路西、钱长路东、春雷路北,建设单位为无锡市仓下中学。
项目可建设用地面积约51866.6平方米,用地性质为中小学用地。
项目总建筑面积约1.90万平方米,其中地上建筑面积约1.83万平方米,地下建筑面积约0.07万平方米;容积率、建筑密度、绿地率等相关指标符合规划要求。(具体详见规划公示图)
二、公示地点和时间
公示地点:
1、项目所在地现场;
2、无锡市数据局(无锡市政务服务管理办公室)网站;
3、无锡市自然资源和规划局锡山分局一楼大厅规划公示栏(东亭南路号);
公示时间:2025年9月19日-2025年9月28日
三、联系方式和意见反馈
联系地点:无锡市自然资源和规划局锡山分局(无锡市锡山区东亭南路号)
邮政编码:214101
联系电话:88535669
电子邮箱:xishanguihuaju@163.com
批前公示旨在征询公众意见,并非最终审批结果。公示期间,如有意见或建议,请反馈给我局(请注明本人身份、联系电话或地址)。
无锡市数据局
2025年9月19日




