鹅湖新增一商住项目,古镇北地块规划出炉
2022-11-02 10:08:34 无锡房地产市场网
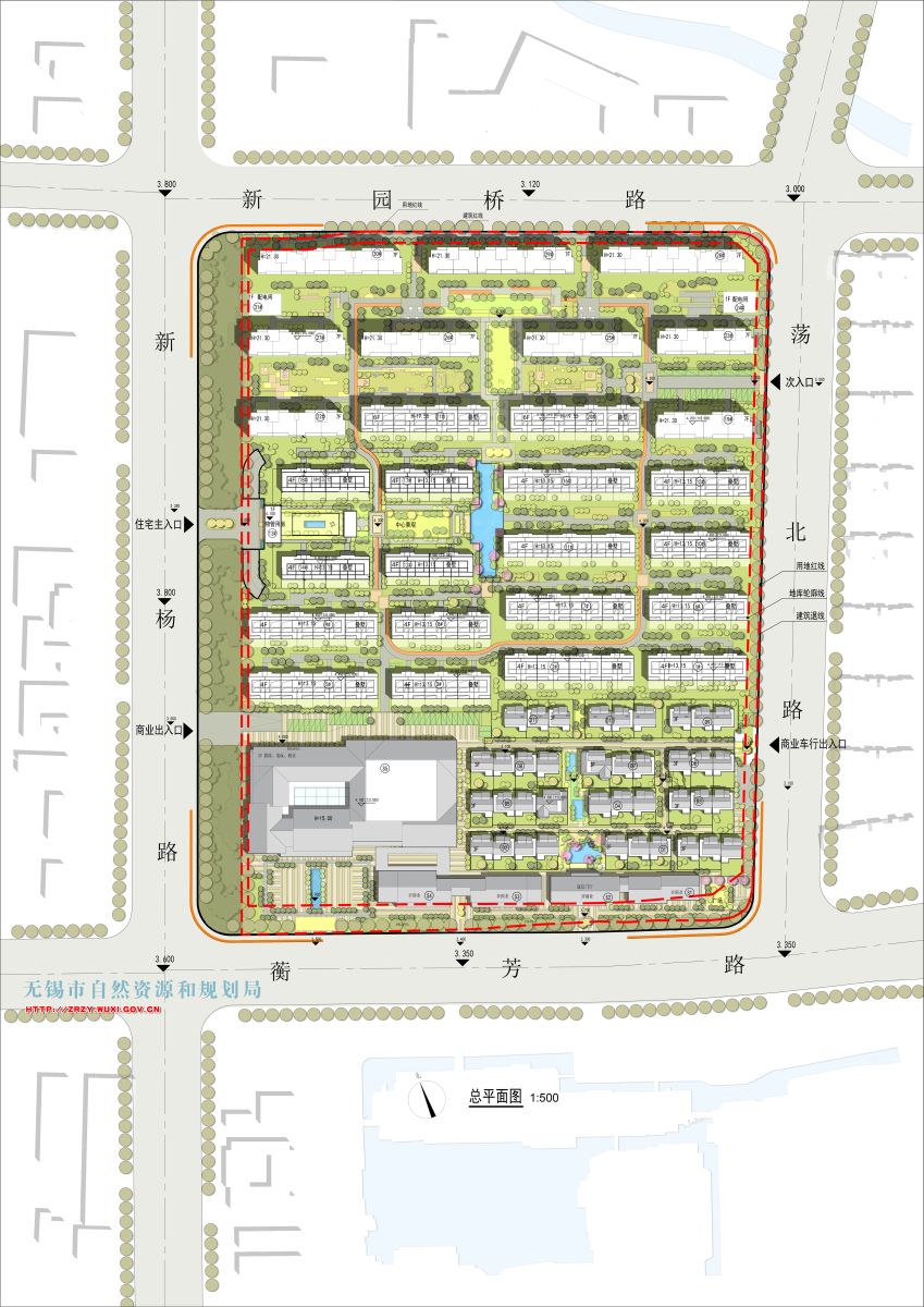
近日,XDG-2021-35号地块(鹅湖古镇北地块)规划公示。
项目位于锡山区鹅湖镇新杨路东、衡芳路北,建设单位为无锡万尚泰辰房地产有限公司,总可建设用地面积约 74489平方米,用地性质为居住、商业用地,总建筑面积约14.46万平方米,其中地上建筑面积约9.86万平方米,地下建筑面积约4. 6万平方米,容积率1.299,建筑密度29.8%,绿地率30%,各项指标符合规划设计条件要求。
XDG-2021-35号地块(鹅湖古镇北地块)于2021年8月2日成交,由文商旅竞得,成交楼面价6469元/㎡。根据地块要求,地块内设置不少于1.2万㎡(不含地下空间)的集中商业(不含办公、专业市场、批发市场等),自持且整体运营。商业综合体须在签订土地合同之日起36个月内满铺开业。从规划图来看,地块内住宅部分以叠墅为主。


