梁溪这宗地块规划出炉,将建超30栋低密住区
2023-06-08 14:36:48 无锡房地产市场网
无锡XDG-2021-72号地块开发建设项目规划设计方案进行批前公示。
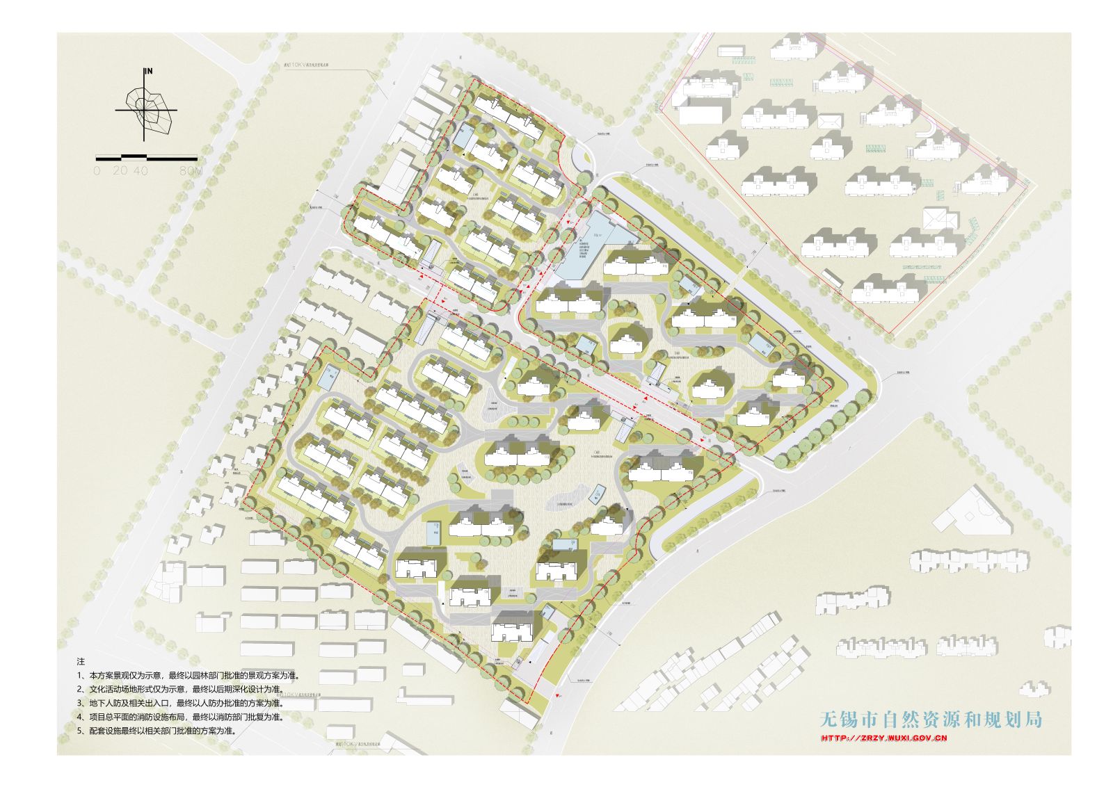
该项目位于梁溪区石门路与新惠路交叉口东南侧,总可建设用地面积约107060.3平方米(含市政道路地下可利用空间),用地性质为居住用地,建设单位为无锡城惠房地产有限公司。
项目总建筑面积约22.0万平方米,其中地上建筑面积约14.6万平方米,容积率约1.4,绿地率约30%。
据项目规划图显示,该项目地块分为A、B、C三个地块开发,其中A地块规划9栋5-6层高住宅,B地块规划9栋6层低密住宅和10栋15-16层小高层,C地块规划7栋15-16层小高层。


项目地块于2021年11月1日土拍中,以楼面价16121元/㎡(不含地下空间),由城南置业竞得。
地块出让时附带特殊要求:
1.建筑高度控制区范围内,住宅建筑≥5层,且≤6层,建筑高度控制区范围外,住宅建筑≥15层,且≤16层。
2.新建住宅成品住房比例40%
3.地块内配置不低于25200㎡的租赁住房(户型面积≥50㎡)
周边生活配套资源完善,山北市场、沿街商铺等可满足基本生活需求。另有 无锡连元寄畅小学\外国语学校等教育资源。地块占地面积超10万方,是近年来山北盛岸片区少有的大面积宅地。
