市场网首页 > 新闻中心 > 规划新闻 > 正文

老项目焕发新活力!22栋一线湖景房来了

2023-02-08 14:28:50    无锡市自然资源和规划局

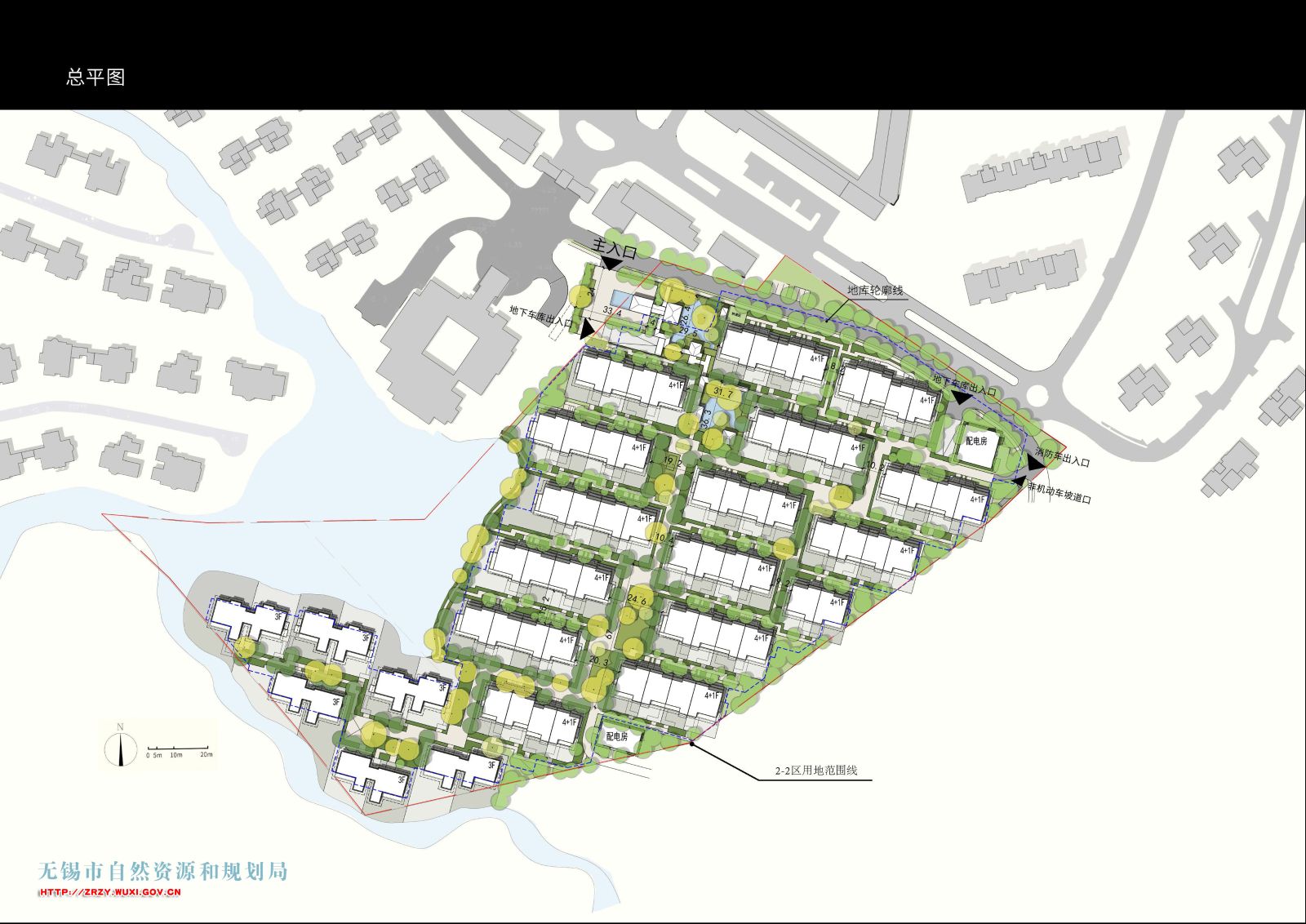
  2月6日,XDG-2003-41号地块(太湖锦绣园)开发建设项目(二期2-2区)规划(建筑)设计方案批前公示。

  项目位于观涛路与听涛路交叉口东南侧,建设单位为无锡太湖美生态环保有限公司。2-2区用地面积约53094平方米,用地性质为居住用地。

  本次报审方案,总建筑面积约8.97万平方米(包含地下建筑面积),容积率、建筑密度、绿地率等相关指标符合规划要求。

  项目拟建22栋住宅,其中6栋3层,16栋4+1层,主入口及地下车库出入口位于项目北侧。

 

责任编辑:陈柯)